Шаровые краны для теплоснабжения и пара Бёмер (Bohmer, Boehmer)
Каталог Шаровые краны для теплоснабжения Бёмер (Bohmer, Boehmer)
Шаровые краны для НАДЗЕМНОЙ установки, установки в КАМЕРАХ
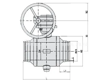
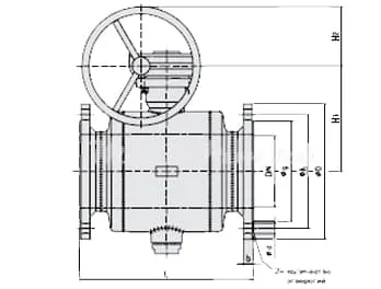
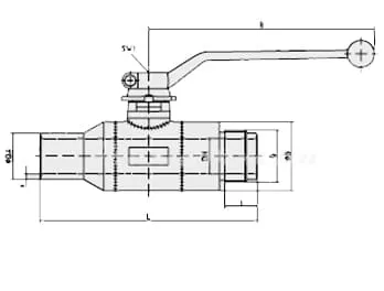
DN 015-0200 Полный проход под приварку с рукояткой BBF/KSF-V-HS
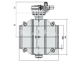
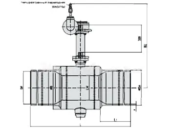
DN 150-1200 Полный проход под приварку
с редуктором
BBF/KSF-V-HS
DN 050-1200 Полный проход под приварку с электроприводом BBF/KSF-V-HS
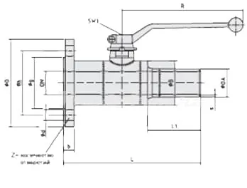
DN 015-0200 Стандартный проход под приварку с рукояткой BBF/KSF-R-HS
DN 200-1200 Полный проход под приварку с редуктором BBF/KSF-R-HS
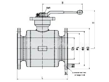
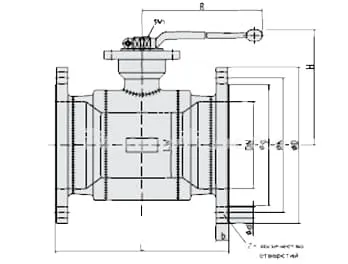
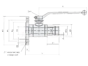
DN 032-0200 Полный проход c фланцевым соединением с рукояткой BBF/FSK-V-HS
DN 150-1000 Полный проход c фланцевым соединением с редуктором BBF/FSK-V-HS
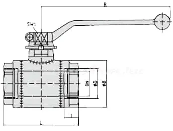
DN 032-0250 Стандартный проход c фланцевым соединением с рукояткой BBF/FSK-R-HS
DN 200-1000 Стандартный проход c фланцевым соединением с редуктором BBF/FSK-R-HS
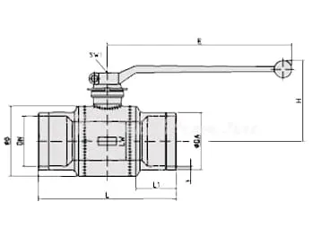
DN 010-0050 Полный проход резьбовой BBF/KSG-V-HS
| DN | PN | DA | S* | L | L1 | B | H | R | SW1 | Вес |
| мм | бар | мм | мм | мм | мм | мм | мм | мм | мм | кг |
| 15 | 25/40 | 21.3 | 2.6 | 270 | 97 | 39 | 68 | 130 | 10 | 1 |
| 20 | 25/40 | 26.9 | 3 | 270 | 97 | 44 | 68 | 130 | 10 | 1.3 |
| 25 | 25/40 | 32 | 3 | 270 | 90 | 54 | 80 | 180 | 12 | 1.7 |
| 32 | 25/40 | 38 | 3 | 270 | 95 | 64 | 107 | 205 | 16 | 2.6 |
| 40 | 25/40 | 45 | 3 | 270 | 90 | 76 | 112 | 205 | 16 | 3.3 |
| 50 | 25/40 | 57 | 3 | 250 | 80 | 89 | 120 | 205 | 16 | 4.6 |
| 65 | 25/40 | 76 | 3 | 270 | 80 | 121 | 134 | 300 | 16 | 8.3 |
| 80 | 25/40 | 89 | 4 | 280 | 78 | 140 | 160 | 350 | 22 | 11.5 |
| 100 | 25/40 | 108 | 4 | 300 | 79 | 171 | 175 | 350 | 22 | 16.2 |
| 125 | 25/40 | 133 | 4 | 350 | 90 | 203 | 216 | 500 | 22 | 27 |
| 150 | 25/40 | 159 | 4.5 | 400 | 90 | 254 | 266 | 600 | 32 | 51 |
| 200 | 25/40 | 219 | 6 | 460 | 96 | 324 | 301 | 600 | 32 | 82.5 |
* толщина стенок s может быть изменена по запросу заказчика, в рамках технических возможностей.
ОТПРАВИТЬ ЗАПРОС| DN | PN | DA | S* | L | L1 | B | H1 | H2 | Вес |
| мм | бар | мм | мм | мм | мм | мм | мм | мм | кг |
| 150 | 25/40 | 159 | 4.5 | 400 | 90 | 254 | 259 | 150 | 90 |
| 200 | 25/40 | 219 | 6 | 460 | 96 | 324 | 295 | 150 | 136 |
| 250 | 25/40 | 273 | 7 | 540 | 90 | 407 | 361 | 200 | 290 |
| 300 | 25/40 | 325 | 7 | 640 | 91 | 508 | 404 | 200 | 458 |
| 400 | 25/40 | 426 | 7 | 1000 | 319 | 660 | 490 | 250 | 770 |
| 500 | 25/40 | 530 | 7 | 991 | 136 | 814 | 608 | 250 | са. 1800 |
| 600 | 25/40 | 630 | 8 | 1143 | 158 | 955 | 737 | 300 | са. 2500 |
| 700 | 25/40 | 720 | 8 | 1295 | 187 | 1116 | 870 | 300 | са. 4000 |
| 800 | 25/40 | 820 | 9 | 1397 | 430 | 1261 | 946 | 400 | са. 4900 |
| 900 | 25/40 | 920 | 9 | 1499 | 422 | 1396 | 1051 | 400 | са. 7000 |
| 1000 | 25/40 | 1020 | 10 | 1800 | 576 | 1561 | 1180 | 400 | са. 9900 |
| 1200 | 25/40 | 1220 | 10 | 2800 | 955 | 1890 | 1512 | 500 | са. 18500 |
Шаровые краны диаметром DN 500 и больше выполняются по запросу и требованию заказчика. Просьба в случае заказа принимать во внимание соответствующие чертежи.
* толщина стенок s может быть изменена по запросу заказчика, в рамках технических возможностей.
| DN | PN | DA | s* | L | L1 | В | Н1 | Н2 | Вес |
| мм | бар | мм | мм | мм | мм | мм | мм | мм | кг |
| 50 | 25/40 | 57 | 3 | 250 | 80 | 89 | 122,3** | 370 | 29 |
| 65 | 25/40 | 76 | 3 | 270 | 80 | 121 | 136,2** | 370 | 33 |
| 80 | 25/40 | 89 | 4 | 280 | 78 | 140 | 179,5** | 370 | 35 |
| 100 | 25/40 | 108 | 4 | 300 | 79 | 171 | 193,5** | 291 | ~42,2 |
| 125 | 25/40 | 133 | 4 | 350 | 90 | 203 | 211** | 291 | ~52,2 |
| 150 | 25/40 | 159 | 4.5 | 400 | 90 | 254 | 218 | 313 | 95 |
| 200 | 25/40 | 219 | 6 | 460 | 96 | 324 | 253 | 313 | 134 |
| 250 | 25/40 | 273 | 7 | 540 | 90 | 407 | 313 | 313 | ~290 |
| 300 | 25/40 | 325 | 7 | 640 | 91 | 508 | 355 | 313 | 468 |
| 400 | 25/40 | 426 | 7 | 1000 | 319 | 660 | 435 | 313 | 897 |
| 500 | 25/40 | 530 | 7 | 991 | 136 | 814 | 547.5 | 313 | 1816 |
| 600 | 25/40 | 630 | 8 | 1143 | 158 | 955 | 647 | 338 | 2695 |
| 700 | 25/40 | 720 | 8 | 1295 | 187 | 1116 | 751.5 | 363 | 4056 |
| 800 | 25/40 | 820 | 9 | 1397 | 430 | 1261 | 856.5 | 388 | 5173 |
| 900 | 25/40 | 920 | 9 | 1499 | 422 | 1396 | по запросу | по запросу | по запросу |
| 1000 | 25/40 | 1020 | 10 | 1800 | 576 | 1561 | 1043 | 393 | 10540 |
| 1200 | 25/40 | 1220 | 10 | 2800 | 955 | 1890 | по запросу | по запросу | по запросу |
* толщина стенок s может быть изменена по запросу заказчика, в рамках технических возможностей.
** высота указана с адаптером (DN50, 65 – 60мм, DN80-125 – 80мм).
ОТПРАВИТЬ ЗАПРОС| DN | PN | DA | S* | L | L1 | B | H | R | SW | Вес |
| мм | бар | мм | мм | мм | мм | мм | мм | мм | мм | кг |
| 15/12 | 25/40 | 21.3 | 2.6 | 270 | 102 | 39 | 66 | 130 | 10 | 1 |
| 20/15 | 25/40 | 26.9 | 3 | 270 | 100 | 39 | 68 | 130 | 10 | 1.1 |
| 25/20 | 25/40 | 32 | 3 | 270 | 102 | 44 | 70 | 130 | 10 | 1.3 |
| 32/25 | 25/40 | 38 | 3 | 210 | 70 | 54 | 82 | 180 | 12 | 2.1 |
| 40/32 | 25/40 | 45 | 3 | 210 | 65 | 64 | 110 | 205 | 16 | 2.8 |
| 50/40 | 25/40 | 57 | 3 | 220 | 70 | 76 | 115 | 205 | 16 | 3.6 |
| 65/50 | 25/40 | 76 | 3 | 235 | 70 | 89 | 125 | 205 | 16 | 5.2 |
| 80/65 | 25/40 | 89 | 4 | 265 | 75 | 121 | 140 | 300 | 16 | 8.5 |
| 100/80 | 25/40 | 108 | 4 | 275 | 80 | 140 | 160 | 350 | 22 | 12.1 |
| 125/100 | 25/40 | 133 | 4 | 300 | 80 | 171 | 175 | 350 | 22 | 18.3 |
| 150/125 | 25/40 | 159 | 4.5 | 335 | 85 | 203 | 195 | 500 | 22 | 28 |
| 200/150 | 25/40 | 219 | 6 | 375 | 85 | 254 | 240 | 600 | 32 | 50 |
* толщина стенок s может быть изменена по запросу заказчика, в рамках технических возможностей.
Каталог Шаровые краны для теплоснабжения Бёмер (Bohmer, Boehmer)
ОТПРАВИТЬ ЗАПРОС
| DN | PN | DA | S* | L | L1 | B | H | H2 | Вес |
| мм | бар | мм | мм | мм | мм | мм | мм | мм | кг |
| 200/150 | 25/40 | 219 | 6 | 375 | 85 | 254 | 349 | 150 | 81 |
| 250/200 | 25/40 | 273 | 7 | 450 | 98 | 324 | 384 | 150 | 101 |
| 300/250 | 25/40 | 325 | 7 | 700 | 166 | 407 | 355 | 200 | 318 |
| 400/300 | 25/40 | 426 | 7 | 900 | 218 | 508 | 404 | 200 | 610 |
| 500/400 | 25/40 | 530 | 7 | 1000 | 318 | 660 | 490 | 200 | 885 |
| 600/500 | 25/40 | 630 | 8 | 1143 | 212 | 820 | 608 | 250 | 2000 |
| 700/600 | 25/40 | 720 | 8 | 1316 | 245 | 955 | 737 | 300 | 2700 |
| 800/700 | 25/40 | 820 | 9 | 1346 | 213 | 1116 | 870 | 300 | 4300 |
| 900/800 | 25/40 | 920 | 9 | 1727 | 596 | 1261 | 942 | 400 | 5200 |
| 1000/900 | 25/40 | 1020 | 10 | 1800 | 572 | 1396 | 1051 | 400 | 7300 |
| 1200/1000 | 25/40 | 1220 | 10 | 2800 | 1076 | 1561 | 1180 | 400 | 11400 |
Шаровые краны диаметром DN 500 и больше выполняются по запросу и требованию заказчика. Просьба в случае заказа принимать во внимание соответствующие чертежи.
* толщина стенок s может быть изменена по запросу заказчика, в рамках технических возможностей.
Каталог Шаровые краны для теплоснабжения Бёмер (Bohmer, Boehmer)
ОТПРАВИТЬ ЗАПРОС
| DN | PN | L | D | SW | R | H | Вес |
| мм | бар | мм | мм | мм | мм | мм | кг |
| 32 | 25/40 | 130 | 140 | 16 | 205 | 120 | 5.6 |
| 40 | 25/40 | 140 | 150 | 16 | 205 | 125 | 6.9 |
| 50 | 25/40 | 150 | 165 | 16 | 205 | 133 | 9.2 |
| 65 | 25/40 | 170 | 185 | 16 | 300 | 137 | 12.2 |
| 80 | 25/40 | 180 | 200 | 22 | 350 | 156 | 16.2 |
| 100 | 25/40 | 190 | 235 | 22 | 350 | 170 | 21.1 |
| 125 | 25/40 | 325 | 270 | 22 | 500 | 189 | 38.2 |
| 150 | 25/40 | 350 | 300 | 32 | 600 | 229 | 61.5 |
| 200 | 25/40 | 400 | 360 | 32 | 600 | 264 | 93 |
| DN | PN | L | D | H1 | H2 | Вес |
| мм | бар | мм | мм | мм | мм | кг |
| 150 | 25/40 | 350 | 300 | 349 | 150 | |
| 200 | 25/40 | 400 | 360 | 384 | 150 | |
| 250 | 25/40 | 650 | 425 | 355 | 200 | |
| 300 | 25/40 | 750 | 485 | 404 | 200 | |
| 350 | 25/40 | 850 | 555 | 431 | 200 | |
| 400 | 25/40 | 950 | 620 | 531 | 200 | |
| 450 | 25/40 | по запросу | 670 | 567 | 200 | по запросу |
| 500 | 25/40 | по запросу | 730 | 608 | 250 | по запросу |
| 600 | 25/40 | по запросу | 845 | 737 | 300 | по запросу |
| 700 | 25/40 | по запросу | 960 | 870 | 300 | по запросу |
| 800 | 25/40 | по запросу | 1085 | 942 | 400 | по запросу |
| 900 | 25/40 | по запросу | 1185 | 1051 | 400 | по запросу |
| 1000 | 25/40 | по запросу | 1320 |
1180 | 400 | по запросу |
| DN | PN | L | D | SW1 | R | H | Вес |
| мм | бар | мм | мм | мм | мм | мм | кг |
| 32/25 | 25/40 | 130 | 140 | 12 | 180 | 103 | 5.6 |
| 40/32 | 25/40 | 140 | 150 | 16 | 205 | 120 | 6.9 |
| 50/40 | 25/40 | 150 | 165 | 16 | 205 | 125 | 9.2 |
| 65/50 | 25/40 | 170 | 185 | 16 | 205 | 133 | 12.2 |
| 80/65 | 25/40 | 180 | 200 | 16 | 300 | 137 | 16.2 |
| 100/80 | 25/40 | 190 | 235 | 22 | 350 | 156 | 21.1 |
| 125/100 | 25/40 | 325 | 270 | 22 | 350 | 170 | 38.2 |
| 150/125 | 25/40 | 350 | 300 | 22 | 500 | 189 | 61.5 |
| 200/150 | 25/40 | 400 | 360 | 32 | 600 | 229 | 93 |
| 250/200 | 25/40 | 450 | 425 | 32 | 600 | 264 | 117 |
Каталог Шаровые краны для теплоснабжения Бёмер (Bohmer, Boehmer)
ОТПРАВИТЬ ЗАПРОС
| DN | PN | L | D | H1 | H2 | Вес |
| мм | бар | мм | мм | мм | мм | кг |
| 200/150 | 25/40 | 400 | 360 | 349 | 100 | 95 |
| 250/200 | 25/40 | 450 | 425 | 384 | 150 | 148 |
| 300/250 | 25/40 | 750 | 485 | 355 | 200 | 380 |
| 350/300 | 25/40 | 850 | 555 | 404 | 200 | 610 |
| 400/300 | 25/40 | 950 | 620 | 404 | 200 | 665 |
| 450/400 | 25/40 | 1050 | 670 | 531 | 200 | 1010 |
| 500/400 | 25/40 | 1150 | 730 | 531 | 200 | 1065 |
| 600/500 | 25/40 | по запросу | 845 | 608 | 250 | по запросу |
| 700/600 | 25/40 | по запросу | 960 | 737 | 300 | по запросу |
| 800/700 | 25/40 | по запросу | 1085 | 870 | 300 | по запросу |
| 900/800 | 25/40 | по запросу | 1185 | 946 | 400 | по запросу |
| 1000/900 | 25/40 | по запросу | 1320 | 1051 | 400 | по запросу |
ОТПРАВИТЬ ЗАПРОС
| DN | PN | L | B | R | D | i | SW1 | Вес |
| мм | бар | мм | мм | мм | мм | мм | мм | кг |
| 10 | 25/40 | 75 | 39 | 100 | G 3/8 | 12,5 | 10 | 0,7 |
| 16 | 25/40 | 75 | 39 | 130 | G | 15 | 10 | 0,8 |
| 20 | 25/40 | 80 | 44 | 130 | G | 18 | 10 | 0,9 |
| 25 | 25/40 | 90 | 54 | 180 | G 1 | 20 | 12 | 1,3 |
| 32 | 25/40 | 110 | 64 | 205 | G 1 | 21 | 16 | 2,2 |
| 40 | 25/40 | 120 | 76 | 205 | G 1 | 23 | 16 | 2,5 |
| 50 | 25/40 | 140 | 89 | 205 | G 2 | 24 | 16 | 3,5 |
Каталог Шаровые краны для теплоснабжения Бёмер (Bohmer, Boehmer)
ОТПРАВИТЬ ЗАПРОС
Шаровые краны для Подземной установки под ППУ изоляцию
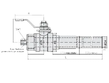
DN 025-150 для подземной установки Полный проход c Приварными патрубками BBF/KSF-V-HE
DN 150-1200 для подземной установки Полный проход c Приварными патрубками BBF/KSF-V-HE
DN 025-150 для подземной установки Стандартный проход c Приварными патрубками BBF/KSF-R-HE
DN 150-1200 для подземной установки Стандартный проход c Приварными патрубками BBF/KSF-R-HE
| DN | PN | DA | S | L | L1 | В | Н2 | SW1 | Вес |
| мм | бар | мм | мм | мм | мм | мм | мм | мм | кг |
| 25 | 25/40 | 32 | 3 | 1500 | 717 | 54 | 465 | 16 | 8 |
| 32 | 25/40 | 38 | 3 | 1500 | 708.5 | 64 | 488 | 16 | 9.3 |
| 40 | 25/40 | 45 | 3 | 1500 | 706 | 76 | 493 | 16 | 11 |
| 50 | 25/40 | 57 | 3 | 1500 | 705.5 | 89 | 501 | 16 | 14 |
| 65 | 25/40 | 76 | 3 | 1500 | 691 | 121 | 515 | 16 | 19 |
| 80 | 25/40 | 89 | 4 | 1500 | 688 | 140 | 549 | 22 | 25 |
| 100 | 25/40 | 108 | 4 | 1500 | 680 | 171 | 562 | 22 | 34 |
| 125 | 25/40 | 133 | 4 | 1500 | 665 | 203 | 581 | 22 | 45 |
| 150 | 25/40 | 159 | 4.5 | 1500 | 640.5 | 254 | 671 | 32 | 85 |
ОТПРАВИТЬ ЗАПРОС
| DN | PN | DA | S* | L | L1 | В | Н2 | Вес |
| мм | бар | мм | мм | мм | мм | мм | мм | кг |
| 150 | 25/40 | 159 | 4.5 | 1500 | 640.5 | 254 | 907 | 137 |
| 200 | 25/40 | 219 | 6 | 1500 | 616 | 324 | 942 | 180 |
| 250 | 25/40 | 273 | 7 | 1500 | 567 | 407 | 1003 | 347 |
| 300 | 25/40 | 325 | 7 | 2000 | 771 | 508 | 1046 | 586 |
| 400 | 25/40 | 426 | 7 | 900 | 268 | 660 | 1179 | 1030 |
| 500 | 25/40 | 530 | 7 | 991 | 136 | 814 | 1256 | 2200 |
| 600 | 25/40 | 630 | 8 | 1143 | 158 | 955 | 1379 | 3000 |
| 700 | 25/40 | 720 | 8 | 1295 | 187 | 1116 | 1541 | 4500 |
| 800 | 25/40 | 820 | 9 | 1397 | 430 | 1261 | 1642 | 5700 |
| 900 | 25/40 | 920 | 9 | 1499 | 422 | 1396 | 1751 | 7400 |
| 1000 | 25/40 | 1020 | 10 | 1800 | 576 | 1561 | 1791 | 11000 |
| 1200 | 25/40 | 1220 | 10 | 2400 | 955 | 1890 | 2219 | 19000 |
* толщина стенок s может быть изменена по запросу заказчика, в рамках технических возможностей. Шаровые краны диаметром от DN 600 выполняются по запросу и требованию заказчика. Просьба в случае заказа принимать во внимание соответствующие чертежи.
ОТПРАВИТЬ ЗАПРОС
| DN/LW | PN | DA | s* | L | L1 | В | Н2 | SW1 | Вес |
| мм | бар | мм | мм | мм | мм | мм | мм | мм | кг |
| 25/20 | 25/40 | 32 | 3 | 1500 | 715 | 44 | 460 | 16 | 7 |
| 32/25 | 25/40 | 38 | 3 | 1500 | 715 | 54 | 465 | 16 | 9 |
| 40/32 | 25/40 | 45 | 3 | 1500 | 712 | 64 | 488 | 16 | 11 |
| 50/40 | 25/40 | 57 | 3 | 1500 | 710 | 76 | 493 | 16 | 12.5 |
| 65/50 | 25/40 | 76 | 3 | 1500 | 705 | 89 | 501 | 16 | 17 |
| 80/65 | 25/40 | 89 | 4 | 1500 | 694 | 121 | 515 | 16 | 22 |
| 100/80 | 25/40 | 108 | 4 | 1500 | 688 | 140 | 549 | 22 | 30 |
| 125/100 | 25/40 | 133 | 4 | 1500 | 680 | 171 | 562 | 22 | 39.5 |
| 150/125 | 25/40 | 159 | 4.5 | 1500 | 667 | 203 | 581 | 22 | 51.3 |
ОТПРАВИТЬ ЗАПРОС
| DN/LW | PN | DA | s* | L | L1 | В | Н2 | Вес |
| мм | бар | мм | мм | мм | мм | мм | мм | кг |
| 150/125 | 25/40 | 168,3 | 5 | 1500 | 667 | 203 | 856 | 85 |
| 200/150 | 25/40 | 219,1 | 6,3 | 1500 | 648 | 254 | 907 | 145 |
| 250/200 | 25/40 | 273 | 7,1 | 1500 | 625 | 324 | 942 | 180 |
| 300/250 | 25/40 | 323,9 | 8 | 2000 | 817 | 407 | 1003 | 482 |
| 400/300 | 25/40 | 426 | 11 | 2000 | 770 | 508 | 1050 | 700 |
| 500/400 | 25/40 | 530 | 7 | 2000 | 620 | 660 | 1122 | 1400 |
| 600/500 | 25/40 | 630 | 8 | 2500 | 657 | 814 | 1280 | 2400 |
| 700/600 | 25/40 | 720 | 8 | 1316 | 245 | 955 | по запр. | ca. 3200 |
| 800/700 | 25/40 | 820 | 9 | 1346 | 213 | 1116 | по запр. | ca. 4700 |
| 900/800 | 25/40 | 920 | 9 | 1727 | 595 | 1261 | по запр. | ca. 6000 |
| 1000/900 | 25/40 | 1020 | 10 | 1800 | 572 | 1396 | по запр. | ca. 7700 |
| 1200/1000 | 25/40 | 1220 | 10 | 2800 | 1076 | 1561 | по запр. | ca. 12000 |
Каталог Шаровые краны для теплоснабжения Бёмер (Bohmer, Boehmer)
ОТПРАВИТЬ ЗАПРОС
Шаровые краны для Спуска воздуха, Дренажа
DN 010-100 Полный проход c фланцевым соединением для вентиляции и слива BBF/FSL-V-HS
DN 016-050 Полный проход для спуска воздуха BBF/KSG-V-HS
DN 010-100 Полный проход c фланцевым соединением для вентиляции и спуска воздуха BBF/FSL/KSF-V-HS
DN 025-050 Стандартный проход c фланцевым соединением для вентиляции и спуска воздуха BBF/FSL/KSF-R-HS
DN 025-080 для Спуска воздуха с фланцевым и сварным соединением Полный проход из нержавеющей стали BBF/ELF/ESF-V-HE
DN 025-050 для Спуска воздуха с фланцевым и сварным соединением Полный проход из нержавеющей стали BBF/EMG/ESF-V-HE
| DN | PN | L | D | SW1 | R | H | Вес |
| мм | бар | мм | мм | мм | мм | мм | кг |
| 10 | 25/40 | 130 | 90 | 10 | 160 | 97 | 2 |
| 15 | 25/40 | 130 | 95 | 10 | 160 | 99 | 2.2 |
| 20 | 25/40 | 150 | 105 | 10 | 160 | 102 | 3 |
| 25 | 25/40 | 160 | 115 | 12 | 180 | 103 | 3.5 |
| 32 | 25/40 | 180 | 140 | 16 | 205 | 120 | 7 |
| 40 | 25/40 | 200 | 150 | 16 | 205 | 125 | 7.5 |
| 50 | 25/40 | 230 | 165 | 16 | 205 | 133 | 11 |
| 65 | 25/40 | 290 | 185 | 16 | 300 | 137 | 18.5 |
| 80 | 25/40 | 310 | 200 | 22 | 350 | 156 | 27 |
| 100 | 25/40 | 350 | 220 | 22 | 350 | 170 | 35 |
ОТПРАВИТЬ ЗАПРОС
| N | PN | DA | s | L | L1 | B | D | R | SW1 | Вес |
| мм | бар | мм | мм | мм | мм | мм | мм | мм | мм | кг |
| 15 | 25/40 | 21.3 | 2.6 | 200 | 104 | 39 | 95 | 130 | 10 | 1.7 |
| 20 | 25/40 | 26.9 | 3 | 210 | 103 | 44 | 105 | 130 | 10 | 2.3 |
| 25 | 25/40 | 32 | 3 | 215 | 100 | 54 | 115 | 180 | 12 | 3.1 |
| 32 | 25/40 | 38 | 3 | 200 | 94 | 64 | 140 | 205 | 16 | 4.2 |
| 40 | 25/40 | 45 | 3 | 205 | 91 | 76 | 150 | 205 | 16 | 5.2 |
| 50 | 25/40 | 57 | 3 | 200 | 78 | 89 | 165 | 205 | 16 | 7.8 |
| 65 | 25/40 | 76 | 3 | 280 | 80 | 121 | 185 | 300 | 16 | 11.6 |
| 80 | 25/40 | 89 | 4 | 295 | 78 | 140 | 200 | 350 | 22 | 14.2 |
| 100 | 25/40 | 108 | 4 | 325 | 80 | 171 | 235 | 350 | 22 | 21.9 |
| 125 | 25/40 | 133 | 4 | 338 | 90 | 203 | 270 | 500 | 22 | 33 |
| 150 | 25/40 | 159 | 4.5 | 375 | 90 | 254 | 300 | 600 | 32 | 58 |
ОТПРАВИТЬ ЗАПРОС
| N | PN | DA | s | L | L1 | B | D | R | SW1 | Вес |
| мм | бар | мм | мм | мм | мм | мм | мм | мм | мм | кг |
| 25/20 | 25/40 | 32 | 3 | 212 | 102 | 44 | 115 | 130 | 10 | 2.6 |
| 32/25 | 25/40 | 38 | 3 | 170 | 70 | 54 | 140 | 180 | 12 | 3.7 |
| 40/32 | 25/40 | 45 | 3 | 175 | 65 | 64 | 150 | 205 | 16 | 4.5 |
| 50/40 | 25/40 | 57 | 3 | 185 | 70 | 76 | 165 | 205 | 16 | 5.9 |
Каталог Шаровые краны для теплоснабжения Бёмер (Bohmer, Boehmer)
ОТПРАВИТЬ ЗАПРОС
| DN | PN | D | DA | i | L | B | R | Вес |
| мм | бар | мм | мм | мм | мм | мм | мм | кг |
| 10 | 25/40 | G 3/8 | 12.5 | 75 | 39 | 10 | 100 | 0.7 |
| 16 | 25/40 | G | 15 | 75 | 39 | 10 | 130 | 0.8 |
| 20 | 25/40 | G | 18 | 80 | 44 | 10 | 130 | 0.9 |
| 25 | 25/40 | G 1 | 20 | 90 | 54 | 12 | 180 | 1.3 |
| 32 | 25/40 | G 1 | 21 | 110 | 64 | 16 | 205 | 2.2 |
| 40 | 25/40 | G 1 | 23 | 120 | 76 | 16 | 205 | 2.5 |
| 50 | 25/40 | G 2 | 24 | 140 | 89 | 16 | 205 | 3.5 |
ОТПРАВИТЬ ЗАПРОС
| DN | PN | DA | S* | L | L1 | B | H | SW1 | Вес | L2 | R | D |
| мм | бар | мм | мм | мм | мм | мм | мм | мм | кг | мм | мм | мм |
| 25 | 25/40 | 32 | 3 | 895 | 200 | 49 | 132 | 41 | 4,2 | 579 | 65 | 115 |
| 32 | 25/40 | 38 | 3 | 1000 | 65 | 65 | 146 | 50 | 6,5 | 774 | 84 | 140 |
| 40 | 25/40 | 45 | 3 | 963 | 75 | 75 | 146 | 55 | 8,5 | 771 | 85 | 150 |
| 50 | 25/40 | 57 | 3 | 911 | 92 | 92 | 146 | 70 | 10,5 | 546 | 95 | 165 |
| 80(1) | 25/40 | 89 | 4 | 1000 | 140 | 140 | 300 | - | 18 | 486 | 155 | 200 |
(1) Данное исполнение отличается от основного ассортимента (материал изготовлен из нержавеющей стали)
* толщина стенок может быть изменена по запросу заказчика, в рамках технических возможностей
| DN | PN | DA | s* | L | L1 | B | H | SW1 | L2 | R | Вес |
| мм | бар | мм | мм | мм | мм | мм | мм | мм | мм | мм | кг |
| 25 | 25/40 | 32 | 3 | 1095 | 148 | 50 | 65 | 27 | 876 | 143 | 3,8 |
| 32 | 25/40 | 38 | 3 | 1000 | 63 | 60 | 84 | 19 | 852 | 150 | 4,8 |
| 40 | 25/40 | 45 | 3 | 1000 | 50 | 75 | 85 | 55 | 771 | 155 | 6,2 |
| 50 | 25/40 | 57 | 3 | 850 | 151 | 93 | 95 | 36 | 587 | 190 | 8,4 |
* толщина стенок может быть изменена по запросу заказчика, в рамках технических возможностей
Каталог Шаровые краны для теплоснабжения Бёмер (Bohmer, Boehmer)
ОТПРАВИТЬ ЗАПРОС
Шаровые краны для Врезки под Давлением
BBF/KSF-V-HE DN 020-100 для Врезки под Давлением Полный проход
BBF/KSF-V-HS DN 020-100 для Врезки под Давлением Полный проход
| DN | PN | DA | S* | L | B | LA | G | H1 | SW | Вес |
| мм | бар | мм | мм | мм | мм | мм | мм | мм | мм | кг |
| 20 | 25/40 | 43734 | 3 | 170 | 44 | 35 | G 1 A | 31.6 | 6 | 1.1 |
| 25 | 25/40 | 32 | 3 | 180 | 54 | 35 | G 1 A | 35 | 6 | 1.7 |
| 32 | 25/40 | 38 | 3 | 200 | 63.5 | 35 | G 1 A | 49.5 | 10 | 2.4 |
| 40 | 25/40 | 45 | 3 | 210 | 76 | 55 | G 2 A | 55 | 10 | 3.4 |
| 50 | 25/40 | 57 | 3 | 240 | 90 | 55 | G 2 A | 62.5 | 10 | 4.9 |
| 65 | 25/40 | 76 | 3 | 260 | 121 | 55 | G 2 A | 77.5 | 10 | 8.2 |
| 80 | 25/40 | 89 | 4 | 280 | 140 | 30 | G 3 A | 100 | 12 | 10.7 |
| 100 | 25/40 | 108 | 4 | 300 | 171 | 30 | G 4 A | 114 | 12 | 16.6 |
* толщина стенок может быть изменена по запросу заказчика, в рамках технических возможностей
ОТПРАВИТЬ ЗАПРОС| DN | PN | DA | s | L | B | R | G | i | SW1 | Вес |
| мм | бар | мм | мм | мм | мм | мм | мм | мм | мм | кг |
| 20 | 25/40 | 26.9 | 3 | 170 | 44 | 130 | G 1 А | 35 | 10 | 1.2 |
| 25 | 25/40 | 32 | 3 | 180 | 54 | 180 | G 1 А | 35 | 12 | 1.8 |
| 32 | 25/40 | 38 | 3 | 200 | 64 | 205 | G 1 А | 35 | 16 | 2.6 |
| 40 | 25/40 | 45 | 3 | 210 | 76 | 205 | G 2 А | 55 | 16 | 3.6 |
| 50 | 25/40 | 57 | 3 | 240 | 90 | 205 | G 2 А | 55 | 16 | 5.1 |
| 65 | 25/40 | 76 | 3 | 260 | 121 | 300 | G 2 А | 55 | 16 | 8.4 |
| 80 | 25/40 | 89 | 4 | 280 | 140 | 350 | G 3 А | 30 | 22 | 10.9 |
| 100 | 25/40 | 108 | 4 | 300 | 171 | 350 | G 4 А | 30 | 22 | 16.8 |
Каталог Шаровые краны для теплоснабжения Бёмер (Bohmer, Boehmer)
| DN | SW1 | SW2 | |
| полный | редуцированный | мм | мм |
| 20-65 | 25-80 | 16 | 40 |
| 80-125 | 100-150 | 22 | 50 |
| 150-300 | 200-400 | 32 | 80 |
Каталог Шаровые краны для теплоснабжения Бёмер (Bohmer, Boehmer)







Ручной привод (рычаг, ручка)
При нестандартных условиях применения в запросе должны быть указаны данные сред, давления и рабочие температуры.

механический редуктор

электрический привод











Т-образный ключ
















